Description
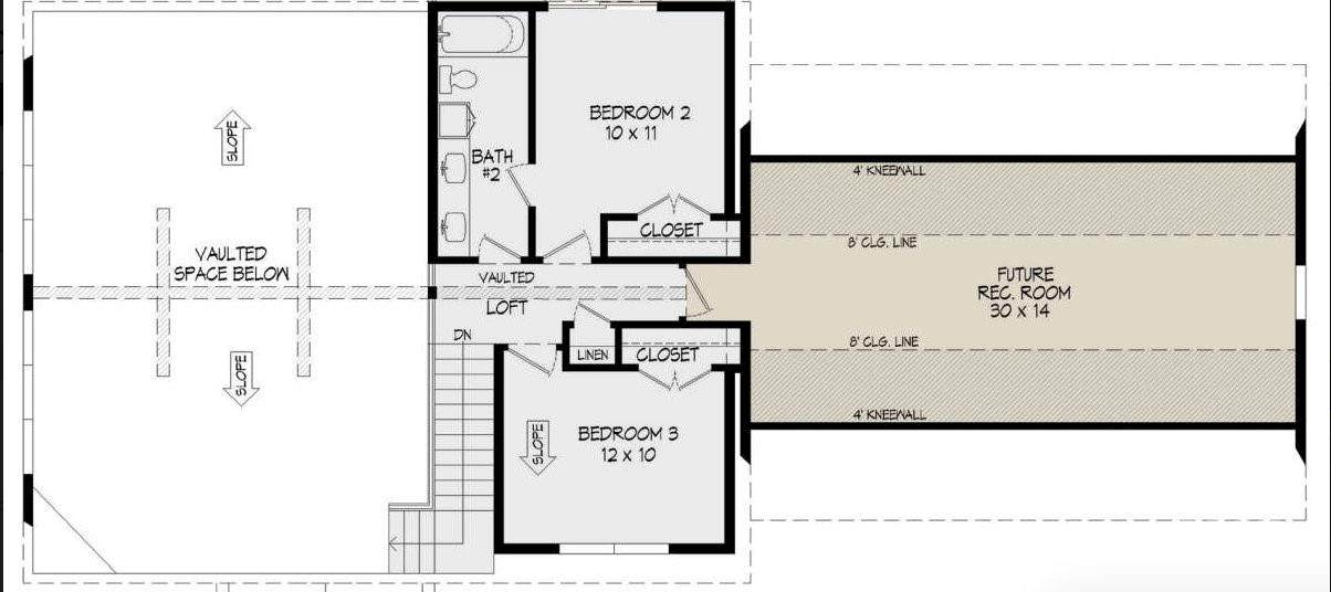
Welcome to this exceptional new proposed construction home in the sought-after Old Oaks Estates, set on 2.02 acres of pure mountain beauty! From the moment you step inside, you'll be wowed by the soaring two-story vaulted ceiling and the open, light-filled living, kitchen, and dining areas. The great room features a dramatic wall of glass that leads to a vaulted porch with show-stopping views of Table Rock and Hawksbill Mountains. The main level offers a luxurious, spa-inspired primary suite, a stylish half bath, a convenient laundry room, and an oversized double garage. Upstairs, there are two more spacious bedrooms, a full bath, and a flexible bonus roomperfect for a media room, office, or play space. Need more room? The walk-out basement is already rough-plumbed for a bathroom and a second kitchen, giving you endless possibilities to customize your dream space. Private, peaceful, and picture-perfectthis home has it all! Reserve and pick out your personal touches.
-
3BEDS
-
2.02ACRES
-
2BATHS
-
11/2 BATHS
-
2,319SQFT
-
$313$/SQFT
School Information
Offered by Berkshire Hathaway HomeServices Blue Ridge REALTORS®: 828-438-3660. Copyright 2026 Canopy MLS. All rights reserved.Description
Welcome to this exceptional new proposed construction home in the sought-after Old Oaks Estates, set on 2.02 acres of pure mountain beauty! From the moment you step inside, you'll be wowed by the soaring two-story vaulted ceiling and the open, light-filled living, kitchen, and dining areas. The great room features a dramatic wall of glass that leads to a vaulted porch with show-stopping views of Table Rock and Hawksbill Mountains. The main level offers a luxurious, spa-inspired primary suite, a stylish half bath, a convenient laundry room, and an oversized double garage. Upstairs, there are two more spacious bedrooms, a full bath, and a flexible bonus roomperfect for a media room, office, or play space. Need more room? The walk-out basement is already rough-plumbed for a bathroom and a second kitchen, giving you endless possibilities to customize your dream space. Private, peaceful, and picture-perfectthis home has it all! Reserve and pick out your personal touches.
Based on information submitted to the MLS GRID as of 2026-01-18T16:33:39.783 UTC. All data is obtained from various sources and may not have been verified by broker or MLS GRID. Supplied Open House Information is subject to change without notice. All information should be independently reviewed and verified for accuracy. Properties may or may not be listed by the office/agent presenting the information.The data relating to real estate on this Web site derive in part from the Canopy MLS IDX program. Brokers make an effort to deliver accurate information, but buyers should independently verify any information on which they will rely in a transaction. All properties are subject to prior sale, change or withdrawal. Neither Carolina Coastal Group nor any listing broker shall be responsible for any typographical errors, misinformation, or misprints, and they shall be held totally harmless from any damages arising from reliance upon this data. This data is provided exclusively for consumers' personal, non-commercial use and may not be used for any purpose other than to identify prospective properties they may be interested in purchasing. © 2026 Canopy MLS.
“Listings courtesy of Canopy MLS as distributed by MLS GRID
Some IDX listings have been excluded from this website.
Digital Millennium Copyright Act
